日本Moca建筑师设计了一间有着又大又尖屋顶的房子,将其取名为HouseAA,位于日本关西地区的奈良市住宅区,单单从其设计就可以简单的知道这所房屋的布局。HouseAA秉承了日式房屋简单结构的特点,整个屋子几乎仅由地板,柱子和屋顶3部分组成。
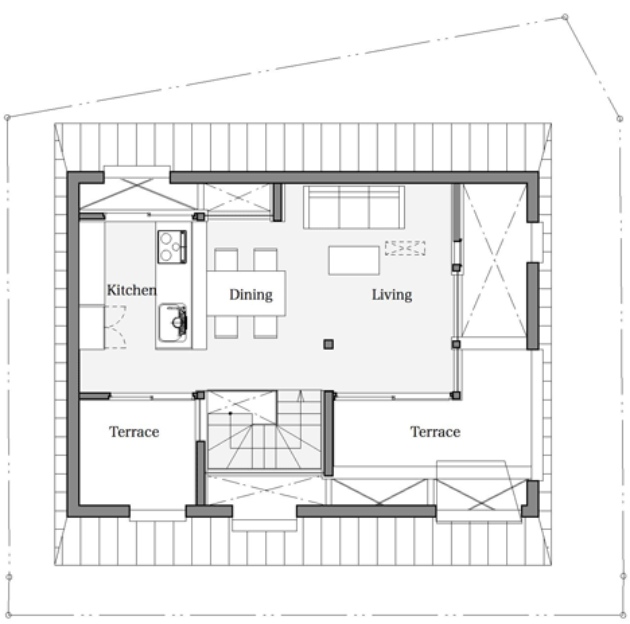
屋子的楼高仅为两层,楼层较低,通过一个凹陷的门道,进到屋子的内部,第一层有两间卧室,厕所、浴室和洗漱间,楼上则是一个较大的开放式的起居室,厨房,用餐区还有两个阳台,你还可以透过那大大的落地窗看到沿路的风景。开放式的空间与严实的大屋顶结合,也使得开放式的二楼有了合理的封闭感,看上去也是安全感十足。
设计师还不忘了对房屋的采光做了精心的设计,大屋檐的高度和尺寸,以及阳光照射进屋内的角度,使得屋子在不同的时间段都可以达到很好的采光效果。空间的合理利用和设计师精心的布局,这间屋子显得十分精致。















评论登录