每当你上下班乘坐电梯回家的那一刻,你是否会觉得这样的生活索然无味,要是遇到电梯停电或者检修的情况下,我们不得不气喘吁吁的爬楼梯,每当遇到这种情况,心里恨不得抓狂。

话说回来, 现如今结构高层建筑是现代科学技术的产物,高楼大厦已经是很平常的建筑物,而我们以往所看到的传统的建筑物却不复存在。即使人们用传统的材料木、砖、石等来建造房屋,但所需材料工程量太大,不利于城市建设。而高层建筑一般以钢材和钢筋混凝土为建造材料,通常采用框架结构、剪力墙结构、筒体结构甚至筒中筒结构形式,以保证建筑的整体结构强度,这样的技术逐渐代替了以往传统的建筑。

2
可有些地区却不受这种新型建筑的束缚,他们依然选择用石头,石灰岩等材料来建造他们所需的房屋,而对于我们来说,恐怕只有羡慕的份了。
建造这种房屋的地形是大面积的石灰岩地形,这种地域上曾经大多数都覆盖着橡树,这种景象就好像很多威尼斯的水上城市。为什么要在这种土质上种植橡树呢?缘于很多沙土被大风刮走,地面被剥落显露出了石灰岩土质。受到自然环境的影响,这种传统简洁的由石头堆积而起无窗的建筑物渐渐的流行起来,流传至今。在日常生活中,这些建筑物都是根据特殊的地形条件和土质条件而设计的小巧而紧凑的石灰石房屋,与每个家庭的所需和现代技术条件紧密相关。
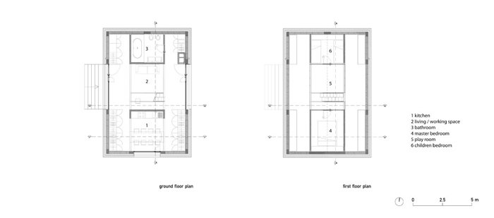
传统的石头房定 义为普就是我们常在乡村地区常见的那种普通房屋,外观简洁,用石头做的倾斜的房顶。把房屋假想成一个用容积的容器,中间用两根插入的木头卷临时搭接连在一起,组合成一个简单的框架,地板的修建大多数是作为一个公开的或者半公开的空间,地板给人以美好的视觉效果。另外,房屋上面一层地板代表的是一些非常私人隐秘的东西,有天空的神秘感。 上层和下层的空间是被两个插入的木头卷分开的,底层包括一个厨房和一个浴室, 在二层地板上是大人的卧室和孩子的房间。
这种房子里套着房子的建筑允许每个卧室用木头搭建以此隔离开屋内空间,从字面上来感觉就好像自己睡在一间大房子,而不是在另外的空间。
房间和游戏室之间都是用桥连接在一起的,房间有三个大型的正方体的窗子,你透过窗户可以看到意大利西部山顶的教堂,南边的森林,东边的入口平台,风景很幽美。
传统的石头房原则上是由石灰岩和石头做好的房顶,它的质地色彩和材料以及倾斜的角度被严格按照具体的工程数据来执行,还有激烈的技术独创性来决定的。
房间内部空间和屋顶之间密不可分。根据以往用传统的石灰岩和石头建造起来的村落,房子的设计关系着现代和传统技术之间的选择,这种选择似乎又回到了用传统方式建造现代建筑,从它起源特点来说,不仅利用了以往统模式而且建立起了新的当代建筑学学说,真正的实现了传统和现代的技术有效结合统一。

















评论登录